
Kontor/lägenhet uthyres på Rååvägen 46
Nu har du möjlighet att hyra en kontorslokal/lägenhet i bästa läget på Råå. UTHYRES ENDAST TILL FÖRETAG P.G.A. MOMSREGLERNA.
INFORMATION
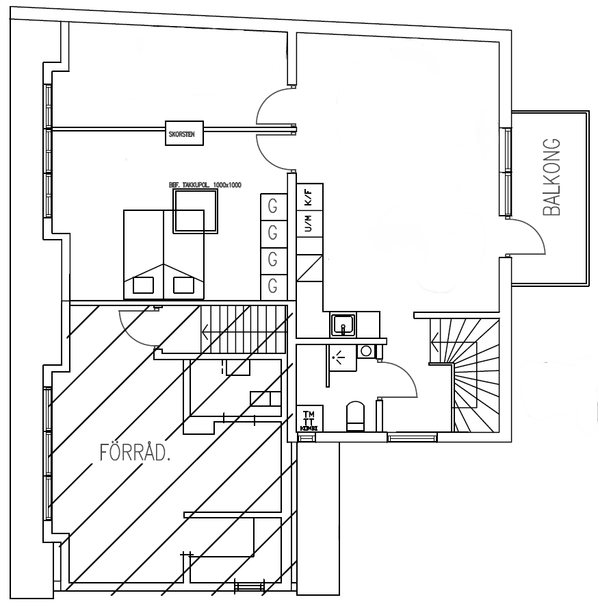
Total yta 81 kvm uppdelat på 3 rum, kök & badrum. Totalrenoverades för 2 år sedan.
Bra läger på Råå, mitt på affärsgatan. 200 m till havet.
Kan hyras med eller utan möbler.
Ensamt tillgång till trädgården
Hyra 14 500 kr/mån exkl.moms. Hyran är öppen för diskussion vid rätt hyresgäst
Inflyttning enligt överenskommelse.
Inkludera bl.a.
Balkong
Diskmaskin
Induktionshäll
Varmluftsugn
Tvättmaskin
Torktumlare
Vatten ingår
Finns också en restaurang i fastigheten
Kontakta: Ulf Li
ulf.li@lupus.nu
0704-893142
Bildgalleri

Mot Rååvägen

Entré på baksidan

Nytt kök

Vardagsrum

Trappa

Rum 1, 20 kvm

Rum 1, takkupa

Rum 2, takkupa

Badrum m. dusch, tvättmaskin & tumlare

Badrum, tvättställ

Planritning

Del av trädgård

Odlingsbox

Hamnen, Råå ån

Rååvägen

Gamla Råå

Rååvallar

Råå vallar Resort

Karta över Råå

Ulf Li, Ägare
